Projekte

      

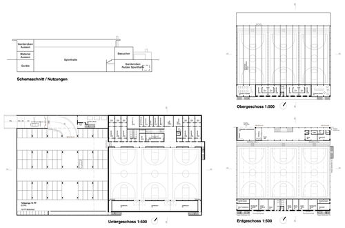
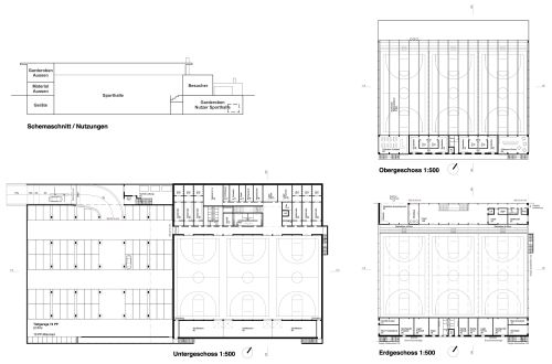
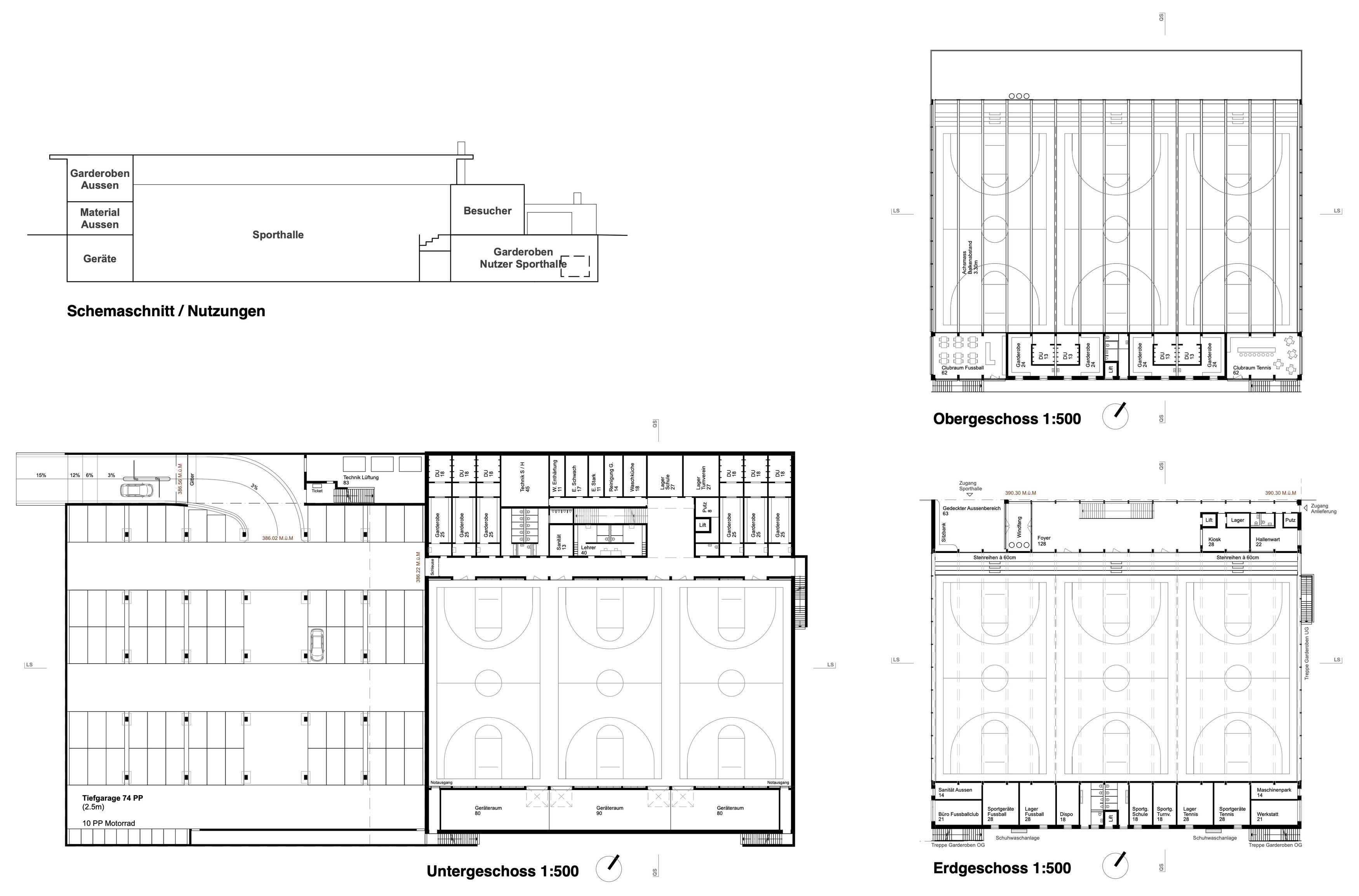
514 - Dreifachsporthalle Bärenmatte, Bremgarten

Sportanlage Bärenmatte, Bremgarten
Planerwahlverfahren
Auftragsart: Planerwahlverfahren
Projekt/Ausführung: 2024